网站首页 公司简介 产品展示 资质荣誉 订货须知 在线反馈 联系我们 邮箱登陆
产品分类
燃气调压器系列
RTZ-Q系列切断式燃气调压器
RTZ-FQ型燃气调压器
RTZ中压进户表前燃气调压器
RTZ-A型系统燃气调压器
RTZ-AQ系列燃气调压器
RTZ-B型高压管道液化气调压器
RTZ-G系列燃气调压器
RTZ-GQ系列燃气调压器
RTJ-GK型系列调压器
RTZ-H型调压器
RAQ系列燃气安全切断阀
RAF系列中、低压燃气安全放散阀
RGL系列气体过滤器
RTZ-FQ燃气调压箱
FQ燃气计量柜
AQ并联计量调压柜
CNG燃气调压柜
LNG燃气调压装置
燃气调压装置
城市燃气门站
联系我们
全国服务热线:
0318-8226429
手机:13932854890
邮箱:13932854890@139.com
网址:www.zqrq.net
地址:衡水市枣强镇门庄工业区
产品展示 您现在所在的位置:首页 > 产品展示 > 燃气调压器系列

RAQ系列燃气安全切断阀

  紧急切断阀又叫做安全切断阀,是指在遇到突发情况的时候,阀门会迅速的关闭或者打开,避免造成事故的发生。
产品用途
  1、用于燃气输配系统中,监控燃气压力,,当系统压力高于或低于一定压力值时,切断阀可迅速紧急切断。
  2、切断阀无须外加能源、利用管网自身压力即可操纵。
  3、动作精度高,响应速度快。
  4、能在较脏的气质介质中正常工作。
  5、安装、调试、操作、维护均较为简便。
工作原理
  1、阀门在日常工作中处于常开状态,电磁阀线图处于断电状态,不消耗电能。
  2、当事故发生时,阀门线因瞬时通电,触发阀门快速关闭,进入自锁状态。此时即使撤去电源,阀门仍处于自锁状态,不会重新自动打开。
  3、阀门采用先导式阀瓣,开启轻松,即使压力达到6bar开启也十分轻松,口径大于DN125,采用杠杆手柄,使阀门达到开关省力、快速。
  4、当工作人员处理完事故,人工重新开启阀门,才会恢复供气。
  注:根据客户要求也可提供断电关闭的常闭型紧急切断阀。
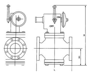
示意图及外形尺寸
规格\代号 1
DN50 254 460 112
DN80 280 490 135
DN100 350 550 154
DN150 450 650 215
DN200 450 680 220
DN300 585 680 360
网站首页 | 公司简介 | 产品展示 | 订货须知 | 在线反馈 | 联系我们
联系人:王德义  手机:13932854890  电话:0318-8226429  邮箱:13932854890@139.com
版权所有:枣强县调压器设备有限公司 地址:衡水市枣强镇门庄工业区 备案号:冀ICP备16027004号-1